元山・美學城市美術館-正濱館


一泓弧線在轉角生成,抹去邊界的尖銳,柔順滑入城市的海濱一隅。

這筆觸是從歷史劃入現代的光,將歷史的肌理照亮,輪廓出新的面貌。

讓重量停留在下層,記憶得以沉澱;

透光的形體在上方漂浮,化為一盞城市美學燈箱。


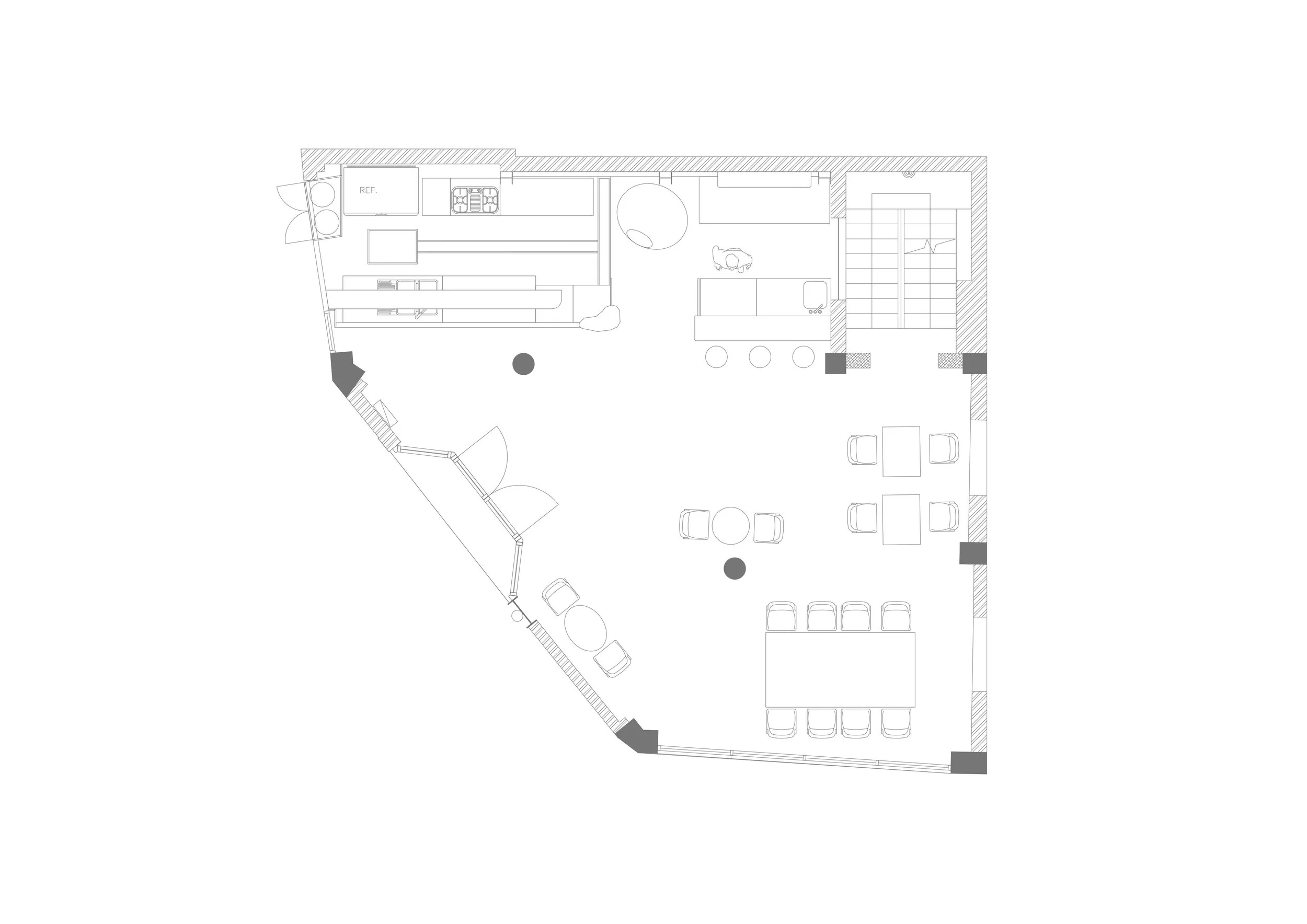
這座建築誕生於城市的正濱漁港的邊角,日據時代起建,一開始僅為結構簡單的庇護所,後來也曾在基隆成為魚港重鎮之際,化身為維修漁船輪機的重機械工廠。團隊一開始造訪此基地,已是廢墟,一樓是五邊形的平面,二樓則在時間中自行生長出拼貼的模樣--有屋頂卻無牆面,以各式材料拼接出不規則的奇形架構。建築牆外依稀可見「宏隆鐵工廠」的油漆字樣,場內隨處可見鐵工廠時期的吊臂、龍門機具與地坑,而水泥磚牆在長期承重及使用下斷裂、劣化,木材、石棉瓦與鐵皮等各式建材層層堆疊,披掛再風化,留下未被修辭的時間痕跡。

壹式設計團隊進場改造,並未試圖彌補空間缺失,使其完整化,而是選擇與不完整共處。設計師以弧線作為主要語彙,回應原本多邊、銳利的角度,使整體視覺趨於統一,更讓行走的動線與視線,在曲面之中被緩緩引導。此外,散落於空間各處的工具被重新收攏,整理為一面工具牆,使勞動的痕跡不再只是背景,而成為被觀看、被閱讀的立面。原本混雜而衝突的材料被整合,結構與漏水問題被細緻處理,視覺在收斂之後回歸純粹,使空間逐漸安靜下來,準備承載新的層次。

光在此,成為建築的主導語言。一樓的光線幽微,不覆蓋牆面,而是輕輕滲入,使水泥的粗糙、裂痕的走向與歲月的肌理在明暗之間浮現,空間因此具有舞台般的深度;二樓再輔以以小圓浪板構成輕隔間,透光而不透明,讓形體在遮蔽與顯現之間保持曖昧,上層如同一層被光托起的薄霧,回應下層厚重而沉靜的存在。

亮與暗、黑與白在空間中清楚分明,下層以線構築結構,承載時間與重量,上層以面形塑形體,輕盈而透光。實與虛在此交會,重與輕彼此對話,使建築不再只是被修復的物件,而是一種被重新理解的狀態。至此,建築有了全新的詮釋:宛如一盞立於城市轉角的壁燈,在靜默之中發光,為歷史留下位置,也為城市美學點亮,成為溫柔而持續的存在。

完工時間|2024/08

客戶| 陳先生

設計團隊|壹式設計整合有限公司

攝影|黃暐程

文字|鄭靖瑜

Yuanshan Aesthetic City Art Museum – Zhengbin Branch

Located at the edge of Zhengbin Fishing Harbor, the Yuanshan Aesthetic City Art Museum – Zhengbin Branch occupies a corner site where the city meets the sea. A continuous curved gesture defines the building’s new architectural language, softening the original sharp boundaries and guiding the structure gently into its urban coastal context.

The intervention introduces a clear spatial hierarchy. The lower level retains a sense of weight and permanence, allowing layers of memory to remain embedded within the structure, while the upper level is conceived as a lightweight, translucent volume that appears to float above, functioning as an illuminated urban lightbox and a visual marker within the city.

Originally constructed during the Japanese colonial period, the building began as a simple shelter before later being adapted into a heavy machinery factory for repairing fishing-vessel engines during Keelung’s peak as a major fishing port. When the design team first encountered the site, the building was in a state of decay. The ground floor maintained a pentagonal plan, while the second floor had evolved into an improvised assemblage—roofed but lacking walls, composed of mismatched materials and irregular structures. Traces of its industrial past remained visible throughout, including cranes, gantry equipment, service pits, and the faded signage of “Honglong Ironworks” on the exterior walls. Years of structural load and exposure had left the concrete block walls cracked and degraded, while layers of timber, asbestos tiles, and corrugated metal bore unfiltered marks of time.

Rather than attempting a complete restoration, One Work Design chose to work with the building’s incompleteness. Curved surfaces were introduced as the primary design strategy, mediating between the existing polygonal geometry and establishing visual continuity across the space. Circulation and sightlines are gradually guided along these curves. Tools scattered across the site were collected and reorganized into a dedicated tool wall, transforming remnants of labor into an architectural element that can be read as part of the spatial narrative. Conflicting materials were rationalized, and structural reinforcement and waterproofing were carefully addressed, allowing the visual language of the space to become restrained and cohesive.

Light plays a central role in the transformation. On the ground floor, illumination is intentionally subdued, grazing surfaces rather than fully washing them, revealing the roughness of concrete, the direction of cracks, and the accumulated textures of time. This controlled lighting creates a spatial depth reminiscent of a theatrical setting. On the upper level, lightweight partitions made from small corrugated translucent panels define space without fully enclosing it. These elements allow light to pass through while maintaining a degree of opacity, placing the architecture in a constant state between exposure and concealment.

A clear contrast is established between the two levels. The lower floor emphasizes structure, line, and mass, anchoring the building in time and weight. The upper floor, by contrast, is defined by planar surfaces, translucency, and lightness. Through this dialogue between solid and void, heavy and light, the project reframes the building not as a restored object but as an adaptive reinterpretation. The museum ultimately reads as a luminous architectural presence at the city corner—quiet yet distinct—preserving historical traces while contributing a contemporary layer to the urban landscape.

Completion | August 2024
Client | Mr. Chen
Design Team | 壹式設計整合有限公司
Photography | Huang Wei-Cheng
Text | Cheng Ching-Yu

一樓平面圖

二樓平面圖


Previous
Previous

Next
Next